Detalle de la propiedad

Laboratorio de desarrollo y control de calidad habilitado

Alquiler

Uruguay 546, Villa Martelli, Buenos Aires, Argentina

ID #002060
  • Sup.Sup. Total795 m2
  • Sup. ConstruidaSup. Construida795 m2
  • PisosPisos2
  • CocherasCocheras6
  • Baños - VestuariosBaños - Vestuarios3
  • AntiguedadAntiguedad20 años
  • HabilitaciónHabilitaciónSi
  • ZonificaciónZonif.Industrial
Contactar

Descripción

 

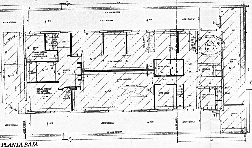
Edificio en block desarrollado en planta baja y primer piso. Cuenta con un entrepiso.

Total 795 m2 aprox.

Habilitación Municipal para laboratorio rubros varios (Zonificación I 1).

Zona Premium corredor Panamericana y Gral. Paz, límite Vicente López y CABA.

Excelente acceso desde autopistas (10 cuadras) y rodeado de empresas de primera línea.

Buena luminosidad natural desde frente y laterales, calles perimetrales.

Fachada sólida, accesos vehiculares laterales con calle propia hacia el fondo para carga/descarga.

Diseño conceptual impecable, pensado para la funcionalidad normativa. Construcción en hormigón.

Amplia recepción y espacio para vigilancia. Control de Acceso con doble puerta.

Despachos al frente.

Amplios espacios de laboratorios para usos varios en PB media, conectados y con doble circulación.

Entrepisos de guarda, archivo y repositorio en la parte posterior de los laboratorios principales.

Núcleos de baños y vestuarios, espacio para Office.

Depósito de 20 mts lineales, con losa a 4.50m en fondo. Con sector para elementos inflamables.

Cuarto de tratamiento de efluentes.

Oficinas administrativas en PA, con comedor y sala de reuniones y baños.

Cocheras al frente (4 posiciones + 2 móviles) – Portones para acceso a los laterales, con posibilidad de estacionamiento adicional.

Instalación eléctrica fuerza motriz trifásica

Equipos de aire acondicionado frío/calor splits individuales.

Ideal para: – Laboratorios farmacéuticos / cosméticos – Empresas de suplementos o alimenticias – Otras del rubro químico / petroquímico.

 

La tasación, intermediación y la conclusión de las operaciones sobre esta propiedad son actividades exclusivas del corredor matriculado actuante, conforme a las previsiones de la ley 20.266, la ley CABA 2340, la ley provincial 10.973 y sus modif. y a las normas reglamentarias dictadas por los colegios departamentales.

La plataforma LabsBrokers ® actúa en forma independiente, brindando servicios de intermediación comercial a corredores, agentes y  clientes. Su intervención se limita a la prestación de servicios de consultoría e intermediación comercial que no incluyen actos de corretaje ni intermediación inmobiliaria.

¡Contáctenos!

LabsBroker es consultada a diario por nuevos clientes buscando comprar, vender o alquilar sus activos y/o compartir sus oportunidades de negocio.

Por favor envíenos un mensaje utilizando el siguiente formulario y será contactado por uno de nuestros profesionales para ayudarlo.