Detalle de la propiedad

Planta Farmacéutica – Laboratorio elaborador Sólidos – Acondicionamiento – Importador/Exportador

Venta

Almirante Francisco Juan Seguí 2106, Buenos Aires, Ciudad Autónoma de Buenos Aires, Argentina

ID #001898
  • Sup.Sup. Total1500 m2
  • Sup. ConstruidaSup. Construida1500 m2
  • PisosPisos3
  • CocherasCocheras2
  • Baños - VestuariosBaños - Vestuarios5
  • AntiguedadAntiguedad20 años
  • HabilitaciónHabilitaciónSi
  • ZonificaciónZonif.Comercial
Contactar

Descripción

LABORATORIO Elaborador / Importador en VENTA/ALQUILER:

PRINCIPALES CARACTERISTICAS:

LABORATORIO PRODUCTIVO ubicado en CABA (Barrio Villa Crespo), habilitado municipalmente para la FABRICACION DE SOLIDOS ORALES (Comprimidos/Capsulas), ACONDICIONAMIENTO y CONTROL de Calidad/Desarrollo, IMPORTADOR/EXPORTADOR.  Contó con habilitación ante ANMAT para la actividad (no vigente actualmente).

Parte de sus áreas productivas son a estrenar (nunca estuvieron operativas), sin embargo requiere readecuación técnica a exigencias actuales.
Es apto para todos los usos de 223/96, aunque no se considere elaborar nada en sus instalaciones,
y/o para usos de Importador o Tercerización.

Fue un laboratorio que perteneció a una familia reconocida del mercado local, la compañía cerro sus operaciones en 2022.

La operación incluye la totalidad del inmueble y sus instalaciones. Adicionalmente cuenta con algunos equipamientos e instrumental, que pueden ser de interés (optativamente incluibles como parte del acuerdo).

Con una adecuada inversión, cuenta con las condiciones necesarias para rehabilitarlo rápidamente ante ANMAT y ponerlo en operación, sea para ejecutar actividades Productivas del rubro Medicinal, o bien adaptarlo o redestinarlo para áreas de R&D, de Calidad u otras alternativas propias del funcionamiento de una estructura del tipo  Importador.

Para el comprador sería acceder a un Laboratorio productor/importador en pleno CABA, o bien operarlo bajo formatos alternativos como ser el registro de productos, importación-exportación y/o elaboración en Terceros, efectuando sólo los Controles de Calidad respectivos.

DATOS RELEVANTES:

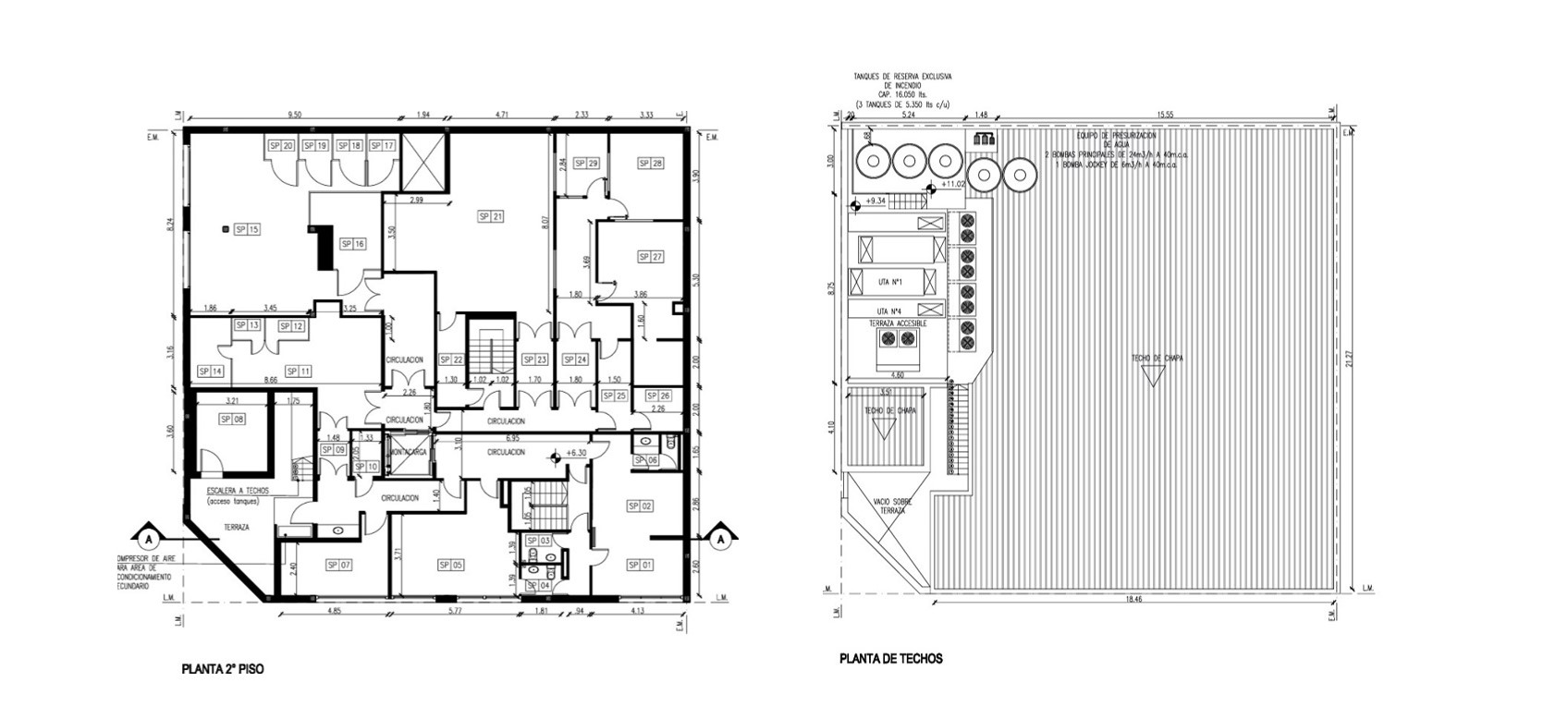
• Superficie: 1500 m2, desarrollados en Subsuelo, PB, 1er, 2do Piso + Terraza con instalaciones
(UTAs, Compresor, Tanques, etc)

• Ingreso/Egreso mercadería por el frente del inmueble. Ingreso de personal independiente.

• Habilitación por ANMAT preexistente (a retramitar), Municipalidad CABA vigente.

• Capacidad productiva: sólidos orales + acondicionamiento + depósitos intermedios

• Laboratorios de Control de Calidad (Microbiológico y Fisicoquímico) completos.

• La venta incluye sólo la Propiedad/Estructura

• Sin personal, deudas ni pasivos.

 

SOCIEDAD TITULAR
La sociedad titular de la actividad y sus activos es factible de ser transferida o en su defecto únicamente sus activos.
El estado contable notariado estará a disposición de los interesados.

REAL OPORTUNIDAD EN CABA.

 

La tasación, intermediación y la conclusión de las operaciones sobre esta propiedad son actividades exclusivas del corredor matriculado actuante, conforme a las previsiones de la ley 20.266, la ley CABA 2340, la ley provincial 10.973 y sus modif. y a las normas reglamentarias dictadas por los colegios departamentales.

La plataforma LabsBrokers ® actúa en forma independiente, brindando servicios de intermediación comercial a corredores, agentes y  clientes. Su intervención se limita a la prestación de servicios de consultoría e intermediación comercial que no incluyen actos de corretaje ni intermediación inmobiliaria.

Contact Us!

LabsBroker is consulted daily by new clients looking to buy, sell or rent their assets and / or share their business opportunities.

Please send us a message using the following form and you will be contacted by our professionals to help you.