Detalle de la propiedad

Drogueria / Depósito – Venta o Alquiler de estructura habilitada

Venta

México 3002, Buenos Aires, Ciudad Autónoma de Buenos Aires, Argentina

ID #001988
  • Sup.Sup. Total1010 m2
  • Sup. ConstruidaSup. Construida1010 m2
  • PisosPisos3
  • CocherasCocheras1
  • Baños - VestuariosBaños - Vestuarios4
  • AntiguedadAntiguedad20 años
  • ElevadorElevadorSi
  • HabilitaciónHabilitaciónSi
  • ZonificaciónZonif.Comercial
Contactar

Descripción

DROGUERIA / LABORATORIO disponible VENTA:
Sus principales características son:

• Ubicado en CABA (Barrio Boedo, zona comercial/residencial segura).
• Estructura propia, depósitos y archivos en diversos sectores de las plantas
• Superficie total: 990 m2
• Desarrollada en tres plantas, con condiciones óptimas de explotación.
• Entrada para camiones, sector carga y descarga (losas altura 6m)
• Oficinas, núcleo de baños y vestuarios
• El edificio posee ascensor, escaleras y un montacargas (carga máx. 1 tonelada)
• Cuenta con equipos de AA° tipo Split en cada ambiente.
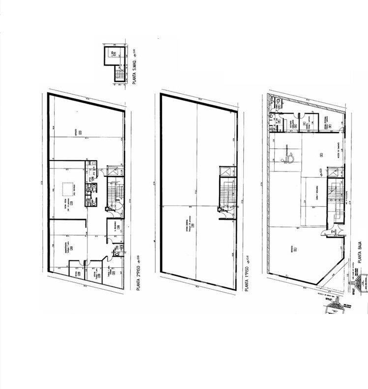
Distribución:
PLANTA BAJA:
Entrada con recepción, ascensor y escaleras a su lado. Amplio depósito, oficina en entrepiso, despacho
con baño; sala de máquinas, montacargas y entrada de camiones.
PRIMER PISO:
Amplio depósito.
SEGUNDO PISO:
Oficinas (4), baños (4), cocina, gran depósito y sala de reuniones.
ASPECTOS REGULATORIOS
• Recientemente alquilada a grupo empresarial del rubro farmacéutico que mudó sus actividades.
Dicho grupo tramito habilitación ante ANMAT para tránsito interjurisdiccional (de su titularidad), sin objeciones.
INVENTARIO DE INSTALACIONES Y EQUIPOS
• Cuenta con algunos sistemas de almacenaje/estanterías incluidas en la estructura ofrecida

 

La tasación, intermediación y la conclusión de las operaciones sobre esta propiedad son actividades exclusivas del corredor matriculado actuante, conforme a las previsiones de la ley 20.266, la ley CABA 2340, la ley provincial 10.973 y sus modif. y a las normas reglamentarias dictadas por los colegios departamentales.

La plataforma LabsBrokers ® actúa en forma independiente, brindando servicios de intermediación comercial a corredores, agentes y  clientes. Su intervención se limita a la prestación de servicios de consultoría e intermediación comercial que no incluyen actos de corretaje ni intermediación inmobiliaria.

Contact Us!

LabsBroker is consulted daily by new clients looking to buy, sell or rent their assets and / or share their business opportunities.

Please send us a message using the following form and you will be contacted by our professionals to help you.